The Burlington Bower, Devonshire Park, Eastbourne

Project: Burlington Bower, Miniature Temple
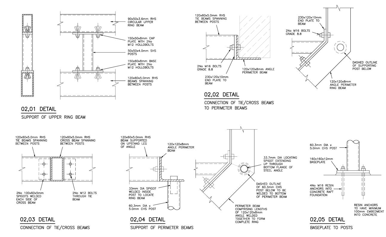
EMS Ltd manufactured and installed the steel frame for miniature temple for Burlington Bower, Devonshire Park, Eastbourne.
Qualifications Required:
- Welder Qualifications BS EN 9606
- Procedures BS EN ISO 51614
- BS EN ISO 1090-2 Execution Class 2
Work Completed:
For this project, we manufactured and installed a 316-grade structural frame to support new stone work. The client supplied the specification and structural calculations for EMS to complete the structure.
Size Of Team:
2 Engineers
Client Testimonial:
As project consultant architect to JDC Architects of Eastbourne, I have no hesitation in recommending EMS for steelwork projects based on their excellent work on the Burlington Bower at Devonshire Park, Eastbourne. This was organised by The Eastbourne Society and it has been a pleasure working with EMS on this complex heritage project. They fabricated and erected a grade 316 stainless steel frame around which cast stone cladding was added to recreate a classical temple that once graced the park in 1895. The original had to be demolished in 1980 due to its rusting frame. The new bower was opened by Lord Burlington in September 2024 and the project received a Sussex Heritage Trust Commendation in 2025.
Richard Crook RIBA AADipl FRSA.


